Finca G
main-banner image
PROYECTO

Finca G

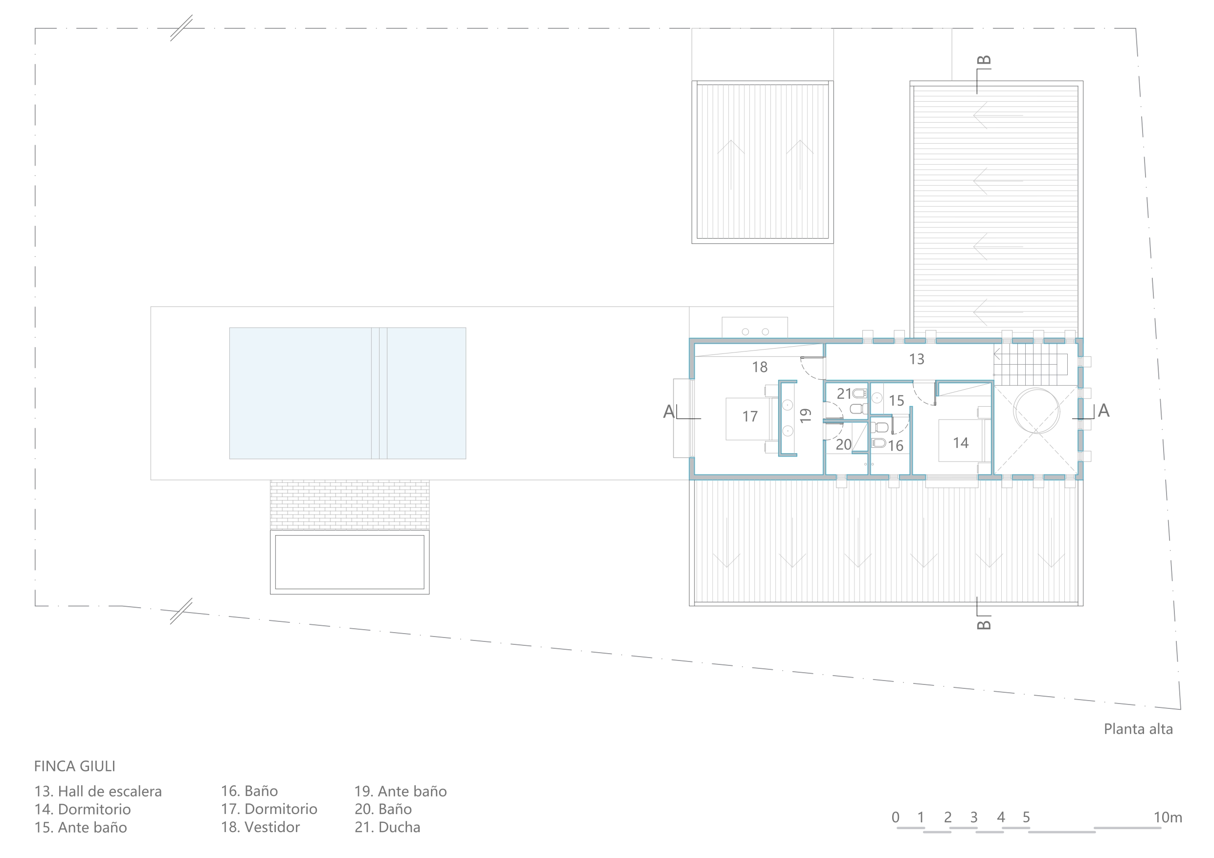
La finca es una estructura de dos plantas construida en módulos. En la planta baja, hay dos módulos idénticos que contienen cocinas y comedores. Uno de estos módulos forma parte de un quincho con asador y piscina, proporcionando un espacio de entretenimiento al aire libre.

La planta alta está destinada a lo privado, con dos dormitorios en suite. Este diseño modular separa claramente las áreas de entretenimiento de las áreas privadas, ofreciendo comodidad y funcionalidad.

AÑO

2023

UBICACIÓN

Santiago del Estero

TIPOLOGÍA

Vivienda unifamiliar

DIRECTOR CREATIVO

NC Arquitectura

COMPARTIR PROYECTO
portfolio image portfolio image portfolio image portfolio image portfolio image portfolio image portfolio image portfolio image
  • YEAR : 2011
  • LOCATION : Guangzhou, China
  • CATEGORY : House
  • CREATIVE DIRECTOR : Harmony Soulth
  • VISUALIZATION :