Fábrica Prima
main-banner image
PROYECTO

Fábrica Prima

El diseño de una nueva fábrica de muebles no solo representa un avance tecnológico en la industria, sino también un compromiso con la calidad, la sostenibilidad y la innovación en cada etapa del proceso de producción.

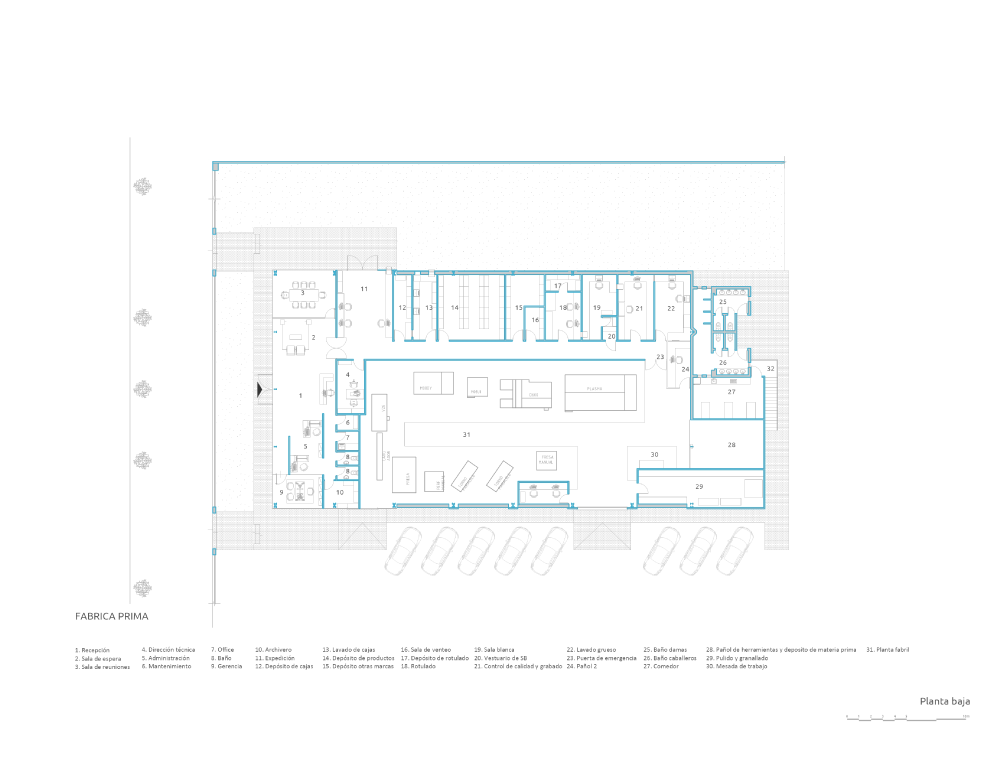
La fábrica consta de una planta baja con espacios contemporáneos y una excelente funcionalidad espacial. Incluye una amplia recepción que dirige hacia los espacios interiores privados como las oficinas, la zona de máquinas y los laboratorios equipados con la mejor tecnología disponible.

La fachada destaca como protagonista, denotando innovación y progreso con sus paneles de luces.

AÑO

2021

UBICACIÓN

Santiago del Estero

TIPOLOGÍA

Fábrica Industrial

DIRECTOR CREATIVO

NC Arquitectura

COMPARTIR PROYECTO
portfolio image portfolio image portfolio image portfolio image portfolio image portfolio image
  • YEAR : 2011
  • LOCATION : Guangzhou, China
  • CATEGORY : House
  • CREATIVE DIRECTOR : Harmony Soulth
  • VISUALIZATION :