Casa Italia
main-banner image
PROYECTO

Casa Italia

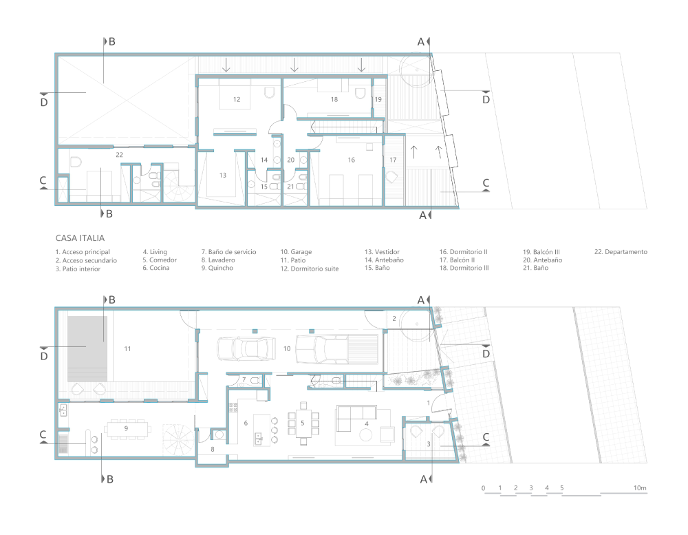
Se trata el diseño de ampliación de espacios existentes de vivienda unifamiliar de dos plantas. Es un espacio contemporáneo y funcional que combina elegancia con funcionalidad.

Esta moderna casa de dos plantas cuenta con una entrada diagonal que rompe con la tradición. En la planta baja, la cocina, comedor y sala de estar se fusionan en un espacio abierto. Una entrada secundaria lleva a un quincho con asador y piscina.

Una pequeña escalera conduce a la planta alta, donde se encuentra la zona privada de un pequeño departamento, cuenta con otra escalera para dormitorios con su propio balcón cada uno y un dormitorio principal en suite, proporcionando un ambiente íntimo y cómodo.

AÑO

2022

UBICACIÓN

Santiago del Estero

TIPOLOGÍA

Vivienda unifamiliar

DIRECTOR CREATIVO

NC Arquitectura

COMPARTIR PROYECTO
portfolio image portfolio image portfolio image portfolio image
  • YEAR : 2011
  • LOCATION : Guangzhou, China
  • CATEGORY : House
  • CREATIVE DIRECTOR : Harmony Soulth
  • VISUALIZATION :