Casa Cabañez
main-banner image
PROYECTO

Casa Cabañez

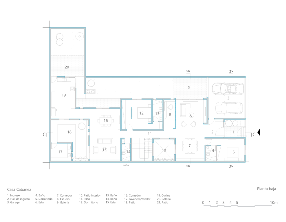
La casa tiene una entrada principal que se destaca por su diseño acogedor y elegante. Conduce a un amplio y luminoso comedor público. Grandes ventanales en el comedor permiten que la luz natural llene el espacio durante el día. Además, la casa cuenta con patios integrados estratégicamente ubicados para proporcionar ventilación e iluminación natural. Uno de estos patios está conectado al comedor público, creando un vínculo visual con la naturaleza.

Casa Cabañez combina elementos de diseño funcional y estético, logrando un equilibrio entre espacios públicos y privados, así como la optimización de la luz natural y la ventilación.

AÑO

2022

UBICACIÓN

Santiago del Estero

TIPOLOGÍA

Vivienda unifamiliar

DIRECTOR CREATIVO

NC Arquitectura

COMPARTIR PROYECTO
portfolio image portfolio image portfolio image portfolio image portfolio image portfolio image
  • YEAR : 2011
  • LOCATION : Guangzhou, China
  • CATEGORY : House
  • CREATIVE DIRECTOR : Harmony Soulth
  • VISUALIZATION :