Casa Amalaya
main-banner image
PROYECTO

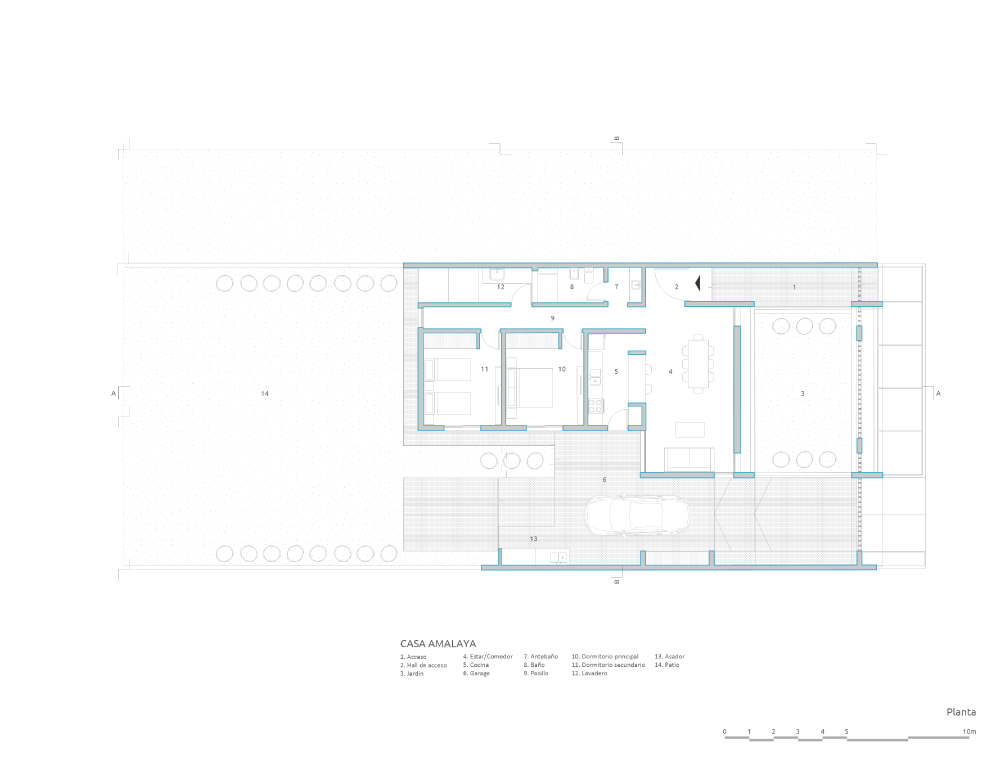
Casa Amalaya

Volumen simple con integración de espacios privados y públicos caracterizados por su fluidez y confort.

Casa Amalaya se destaca por su simpleza y equilibrio de texturas. Sus ladrillos dan seguridad, calidez y contención. Además, trabajamos esta idea con hormigón visto, rústico y elegante, propiciando que la arquitectura se integre con la vegetación: al frente, un jardín vistoso y, al fondo, un espacio recreativo para disfrutar el aire libre.

AÑO

2020

UBICACIÓN

Santiago del Estero

CATEGORÍA

Vivienda unifamiliar

DIRECTOR CREATIVO

NC Arquitectura

COMPARTIR PROYECTO
portfolio image portfolio image portfolio image portfolio image portfolio image
  • YEAR : 2011
  • LOCATION : Guangzhou, China
  • CATEGORY : House
  • CREATIVE DIRECTOR : Harmony Soulth
  • VISUALIZATION :