Casa R&J
main-banner image
PROYECTO

Casa R&J

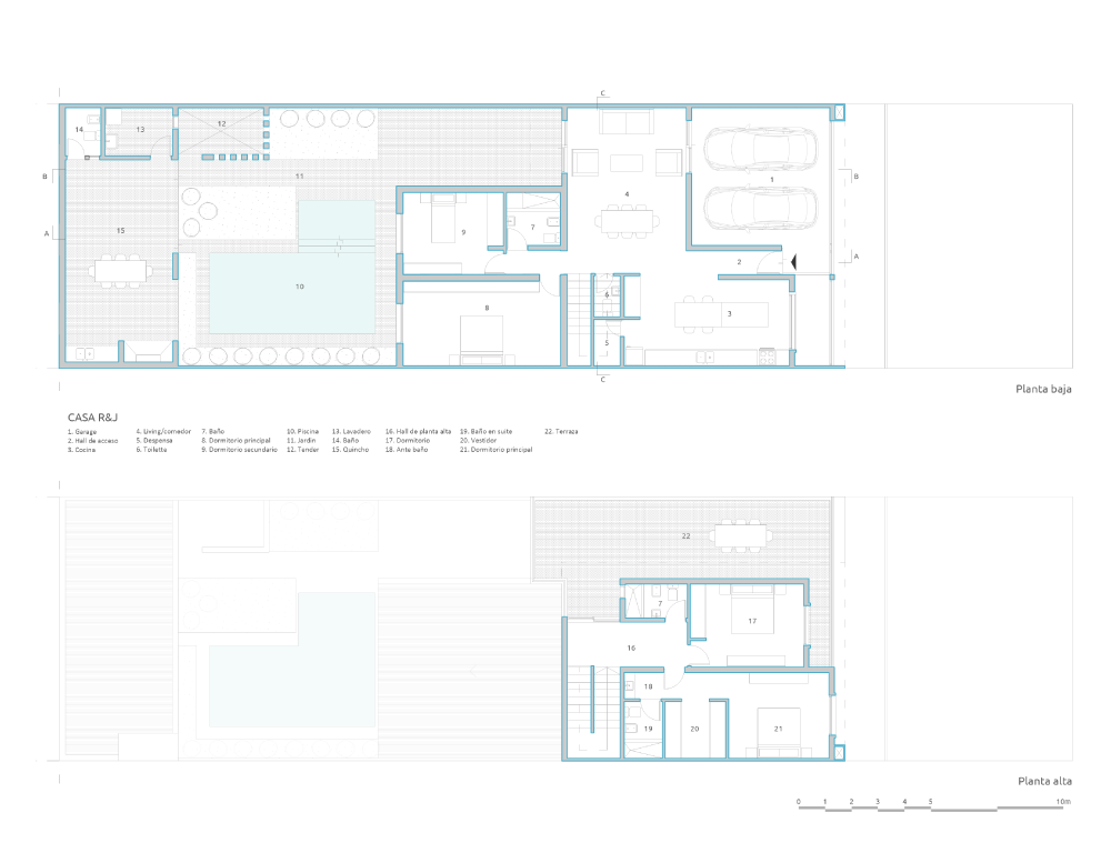
Se trata de un proyecto de vivienda unifamiliar diseñado en dos niveles. En la planta baja, destacan una amplia sala de estar, una cocina-comedor y dormitorios, ofreciendo un espacio cómodo y funcional para la vida diaria.

En la segunda planta se encuentran más dormitorios, incluyendo uno en suite, todos con acceso directo a una terraza que amplía las posibilidades de disfrutar del espacio exterior y las vistas.

El jardín trasero complementa la experiencia con una piscina rodeada de áreas verdes bien cuidadas, creando un entorno ideal para la relajación y los momentos sociales. Esta casa ha sido meticulosamente diseñada para combinar comodidad y lujo, proporcionando el escenario perfecto para la vida familiar y la celebración de eventos.

AÑO

2020

UBICACIÓN

Santiago del Estero

CATEGORÍA

Vivienda unifamiliar

DIRECTOR CREATIVO

NC Arquitectura

SHARE PROJECT
portfolio image portfolio image portfolio image
  • YEAR : 2011
  • LOCATION : Guangzhou, China
  • CATEGORY : House
  • CREATIVE DIRECTOR : Harmony Soulth
  • VISUALIZATION :