Casa G&G
main-banner image
PROYECTO

Casa G&G

Se trata de un estilo de vivienda tradicional de base, que se ajusta a parámetros modernos. En su fachada predomina la teja francesa junto con sus pronunciadas pendientes. Combina materiales, texturas y colores.

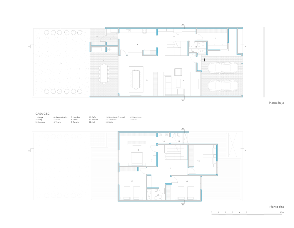
Aprovechando niveles, en planta baja se agrupan actividades de carácter público y semipúblico. En la misma, la vivienda cuenta con espacio verde cómo desborde de galería con asador. Mientras que en planta alta, se preservan los espacios privados, para intimidad de la familia.

AÑO

2020

UBICACIÓN

La Banda, Santiago del Estero

CATEGORÍA

Vivienda unifamiliar

DIRECTOR CREATIVO

NC Arquitectura

SHARE PROJECT
portfolio image portfolio image portfolio image portfolio image
  • YEAR : 2011
  • LOCATION : Guangzhou, China
  • CATEGORY : House
  • CREATIVE DIRECTOR : Harmony Soulth
  • VISUALIZATION :