Casa F&F
main-banner image
PROYECTO

Casa F&F

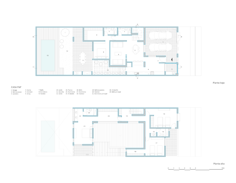
Se trata de una remodelación de vivienda unifamiliar. Terreno entre medianeras y óptima orientación. Búsqueda constante de espacios integrados. En planta baja, se ubican todos los espacios de caracteres públicos y semipúblicos, mientras que, en planta alta encontramos espacios privados para preservar la intimidad de la familia.

Fachada minimalista, donde priman las líneas rectas, el color blanco con sutiles quiebres tanto de textura como materiales.

AÑO

2020

UBICACIÓN

La Banda, Santiago del Estero

TIPOLOGÍA

Vivienda unifamiliar

DIRECTOR CREATIVO

NC Arquitectura

COMPARTIR PROYECTO
portfolio image portfolio image portfolio image portfolio image portfolio image
  • YEAR : 2011
  • LOCATION : Guangzhou, China
  • CATEGORY : House
  • CREATIVE DIRECTOR : Harmony Soulth
  • VISUALIZATION :