Casa A&T
main-banner image
PROYECTO

Casa A&T

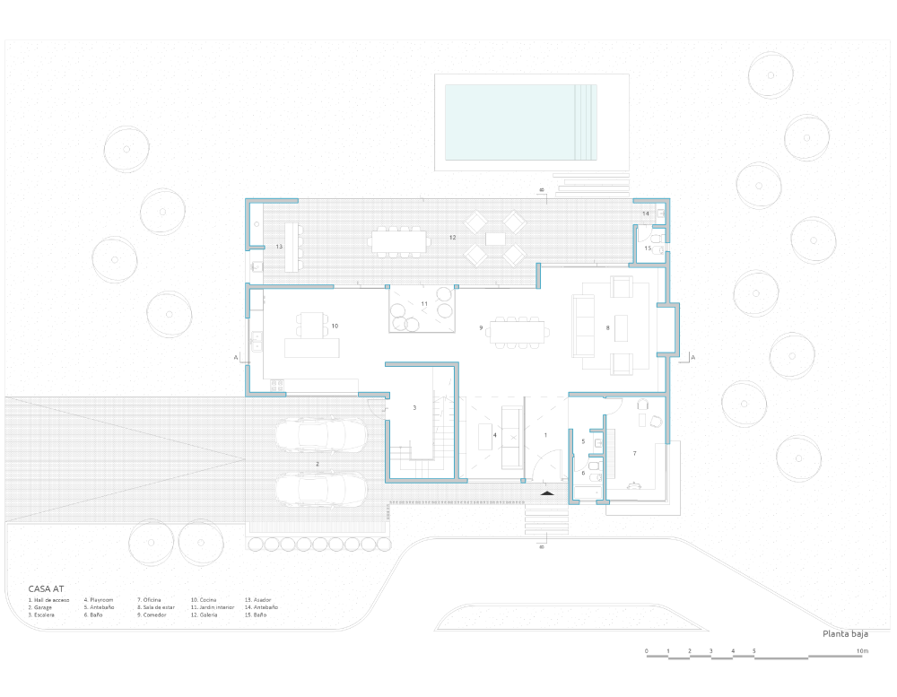
La casa de dos plantas es una elegante y cómoda residencia, que cuenta en la planta baja con un salón principal destacado por su doble altura, brindando amplitud y majestuosidad. Desde la cocina, se accede a patios internos que aportan frescura y luminosidad. La gran galería al aire libre, equipada con asador, es ideal para el entretenimiento.

En la planta alta, la zona privada incluye un dormitorio principal en suite y dormitorios comunes, todos conectados con una terraza privada para ofrecer un toque de naturaleza incluso en los espacios más íntimos.

AÑO

2021

UBICACIÓN

Santiago del Estero

tipologías

Vivienda unifamiliar

DIRECTOR CREATIVO

NC Arquitectura

COMPARTIR PROYECTO
portfolio image portfolio image portfolio image portfolio image portfolio image
  • YEAR : 2011
  • LOCATION : Guangzhou, China
  • CATEGORY : House
  • CREATIVE DIRECTOR : Harmony Soulth
  • VISUALIZATION :