Casa A&C
main-banner image
PROYECTO

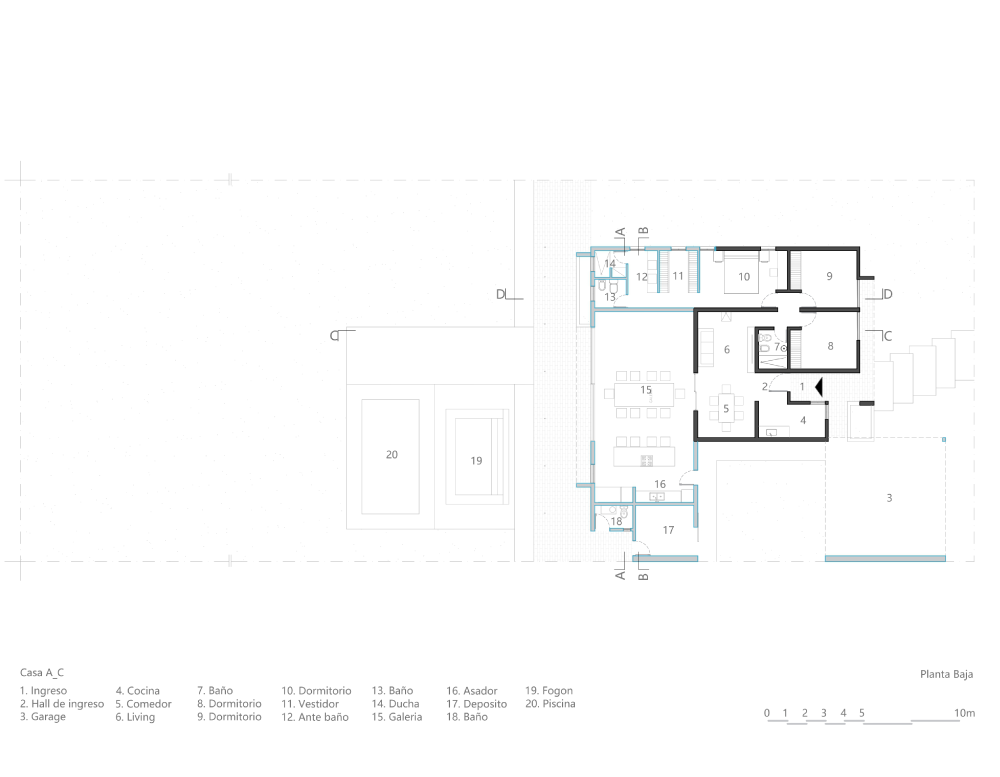
Casa A&C

La casa cuenta con una ampliación para convertir una habitación en una suite con vestidor y baño moderno. La sala de estar conecta con una galería que incluye un asador.

En el exterior, hay una piscina que se conecta a un pequeño fogón, proporcionando un espacio acogedor para disfrutar de noches al aire libre.

AÑO

2021

UBICACIÓN

Santiago del Estero

TIPOLOGÍA

Vivienda unifamiliar

PROYECTO/DIR.TEC.

NC Arquitectura

COMPARTIR PROYECTO
portfolio image portfolio image portfolio image portfolio image
  • YEAR : 2011
  • LOCATION : Guangzhou, China
  • CATEGORY : House
  • CREATIVE DIRECTOR : Harmony Soulth
  • VISUALIZATION :